Maitrise d'ouvrageCentre Hospitalier du Pays de Gier
Montant de l'opération2 400 000 € HT
ArchitecteGENIUS LOCI
Surface2 500 m²
Etat d'avancement
Travaux réceptionnés début 2014.
Nature des travaux
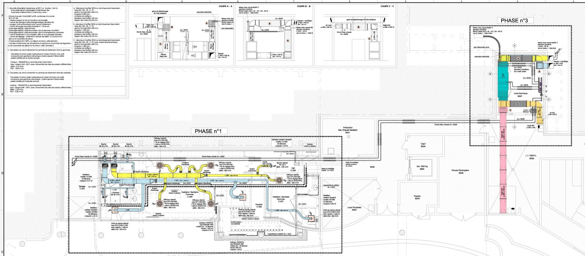
Travaux comprenant l’extension de la salle de kinésithérapie, la création d’une salle de cardiologie et d’un gymnase, la restructuration de certains services dont l’hôpital de jour, avec réhabilitation des chambres existantes.
Complexité de la mission
Maintien en fonctionnement du site pendant les travaux, intervention en site occupé - Coefficient de complexité : 1,35.











